120 BRIANNA COURT 37CHALFONT, PA 18914
Due to the health concerns created by Coronavirus we are offering personal 1-1 online video walkthough tours where possible.




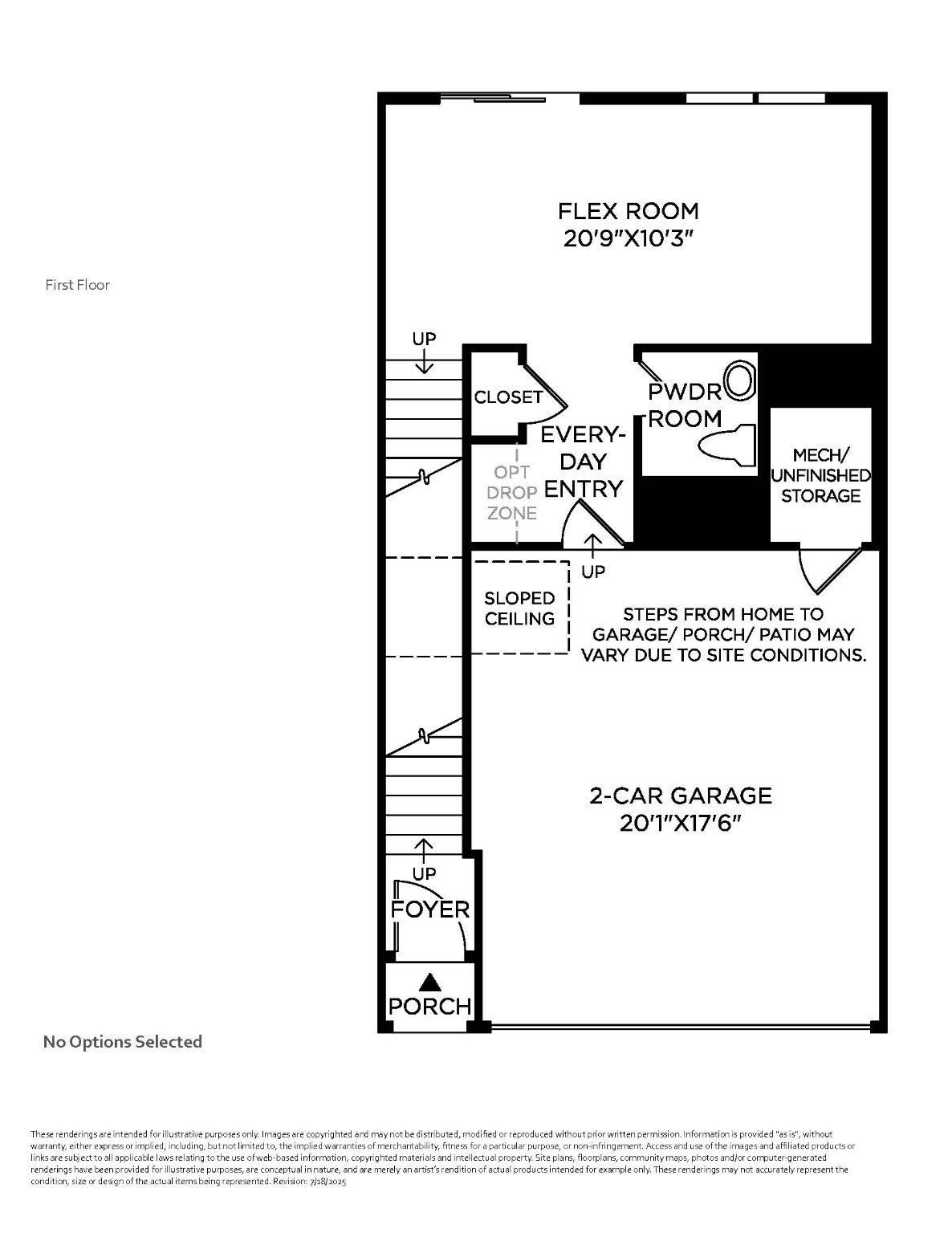
This home is currently under construction and features a thoughtfully designed three-level layout with modern finishes throughout. The entry level includes a welcoming foyer, convenient access to the garage, and functional space suited for everyday living. The main living level offers an open-concept design enhanced by luxury vinyl plank flooring and recessed lighting, creating a bright and cohesive living space. The kitchen is beautifully appointed with a two-tone cabinet design featuring white and verde green cabinetry, quartz countertops, and an upgraded backsplash. KitchenAid appliances complete the space, offering both style and performance. The adjoining living and dining areas provide a seamless flow for entertaining, with access to a spacious 9’ x 18’ deck, perfect for outdoor relaxation. On the bedroom level, select rooms feature comfortable carpeting for added warmth. The primary suite includes a well-appointed bath with upgraded tile finishes, Kohler fixtures, and a frameless shower enclosure. Two additional bedrooms share a full hall bath, also finished with upgraded tile. Bedroom-level laundry adds everyday convenience, completing this well-designed home that balances style and functionality.
| 18 hours ago | Listing first seen on site | |
| 18 hours ago | Listing updated with changes from the MLS® |
The real estate listing information is provided by Bright MLS is for the consumer's personal, non-commercial use and may not be used for any purpose other than to identify prospective properties consumer may be interested in purchasing. Any information relating to real estate for sale or lease referenced on this web site comes from the Internet Data Exchange (IDX) program of the Bright MLS. This web site references real estate listing(s) held by a brokerage firm other than the broker and/or agent who owns this web site. The accuracy of all information is deemed reliable but not guaranteed and should be personally verified through personal inspection by and/or with the appropriate professionals. Properties in listings may have been sold or may no longer be available. The data contained herein is copyrighted by Bright MLS and is protected by all applicable copyright laws. Any unauthorized collection or dissemination of this information is in violation of copyright laws and is strictly prohibited. Copyright © 2020 Bright MLS. All rights reserved.









